We present this magnificent 80 m² property located in one of the most sought‑after areas of the Costa Blanca, in Arenales del Sol, known for its wide sandy beach and its impressive open views of the Mediterranean.
A property that stands out for its spectacular semi‑circular balcony with panoramic sea views, a genuine privilege that is hard to find on the current market.
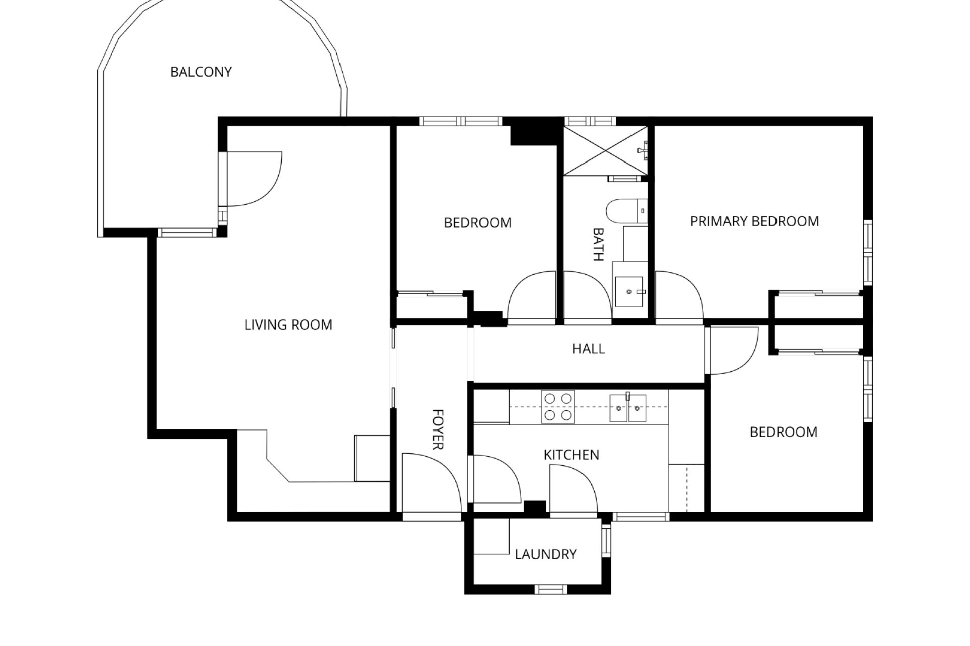
Comfortable and functional layout
The home consists of:
3 bright bedroomsIndependent kitchen with laundry areaFull bathroomLiving‑dining room with direct access to the balcony
The living room opens to the exterior, where the semi‑circular balcony becomes the true highlight of the home. Thanks to its shape and orientation, it offers wide, open, and completely unobstructed views of the sea.
Exclusive and complete community
The property is located in a private and exclusive residential complex, designed for enjoyment throughout the year, offering:
Communal pool with attendantParking space inside the complexCommon storage room areaBarbecue and picnic areaTennis courtFootball courtPetanque court
A secure, well‑kept environment with multiple leisure options for the whole family.
Strategic location
Arenales del Sol is one of the most in‑demand areas both nationally and internationally, thanks to its proximity to Alicante Airport, connection with the city, and privileged natural surroundings.
This home brings together the most sought‑after elements today:✔ Direct panoramic sea views✔ Complete private community✔ Three bedrooms✔ Spacious outdoor areas
An ideal opportunity as a permanent residence or second home by the sea, in one of the most established areas of the Costa Blanca.