€492.000
In picturesque Estepona, Alicante Spain Properties presents an exclusive residential development that redefines the concept of living near the sea. With only 16 homes available, each apartment and ground floor is designed to offer spectacular sea views, just 2 km from the coast. This proximity makes these properties an ideal choice for those looking to enjoy the coastal environment without sacrificing the tranquility of a residential neighborhood.
The exterior design of this complex in Estepona invites you to live outdoors in style. Each home has its own private garden, perfect for taking advantage of the Mediterranean climate all year round. The spacious terraces are ideal for relaxing or entertaining while enjoying the sea view. Additionally, some units feature a private solarium, offering extra space to enjoy the sun in complete privacy, all just 2 km from the beaches.
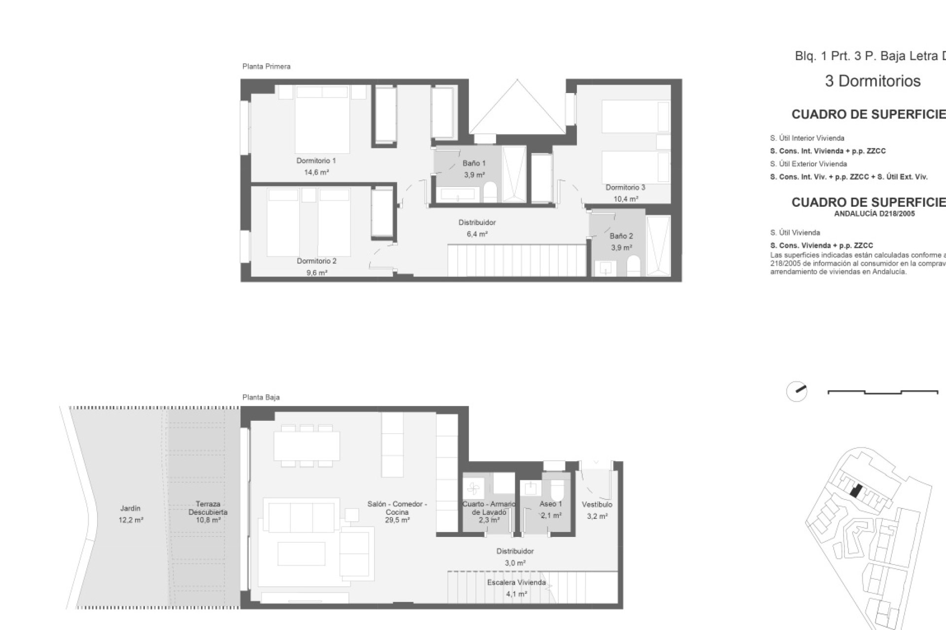
Inside these homes in Estepona, quality and comfort are prioritized. They offer options for apartments and ground floors with 2 or 3 bedrooms equipped with built-in wardrobes that maximize storage. The elegant porcelain stoneware floors add durability and sophistication to the interior spaces. The kitchens are fully equipped with modern appliances, while the bathrooms feature two units per home, ensuring maximum comfort for all residents.
The common areas are designed with the aim of fostering an active and social life among residents. Extensive landscaped areas provide a perfect place to walk or relax outdoors. The community gym is equipped for those who wish to maintain their fitness routine without leaving the complex. The community pool is perfect for cooling off in the summer, providing both fun and family relaxation.