€850.000
In Estepona, just 1 km from the sea, lies this exclusive residential complex presented by Alicante Spain Properties. With an offering of 35 properties, including apartments and ground floor homes, it is the ideal place for those who wish to enjoy the coastal lifestyle without sacrificing comfort. Its privileged location, just 40 km from the airport, facilitates travel and easily connects with other cities.
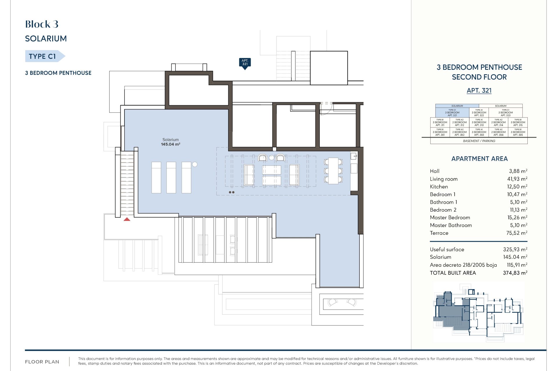
Designed to make the most of the Mediterranean climate, the exteriors of these homes are perfect for outdoor enjoyment. Each property features a private garden where one can relax or host family gatherings. The spacious terraces provide extra space to take in the views or dine under the stars. Additionally, the solarium offers an intimate place to sunbathe. The proximity to the sea, just 1 km away, invites enjoyment of beach walks and water sports.
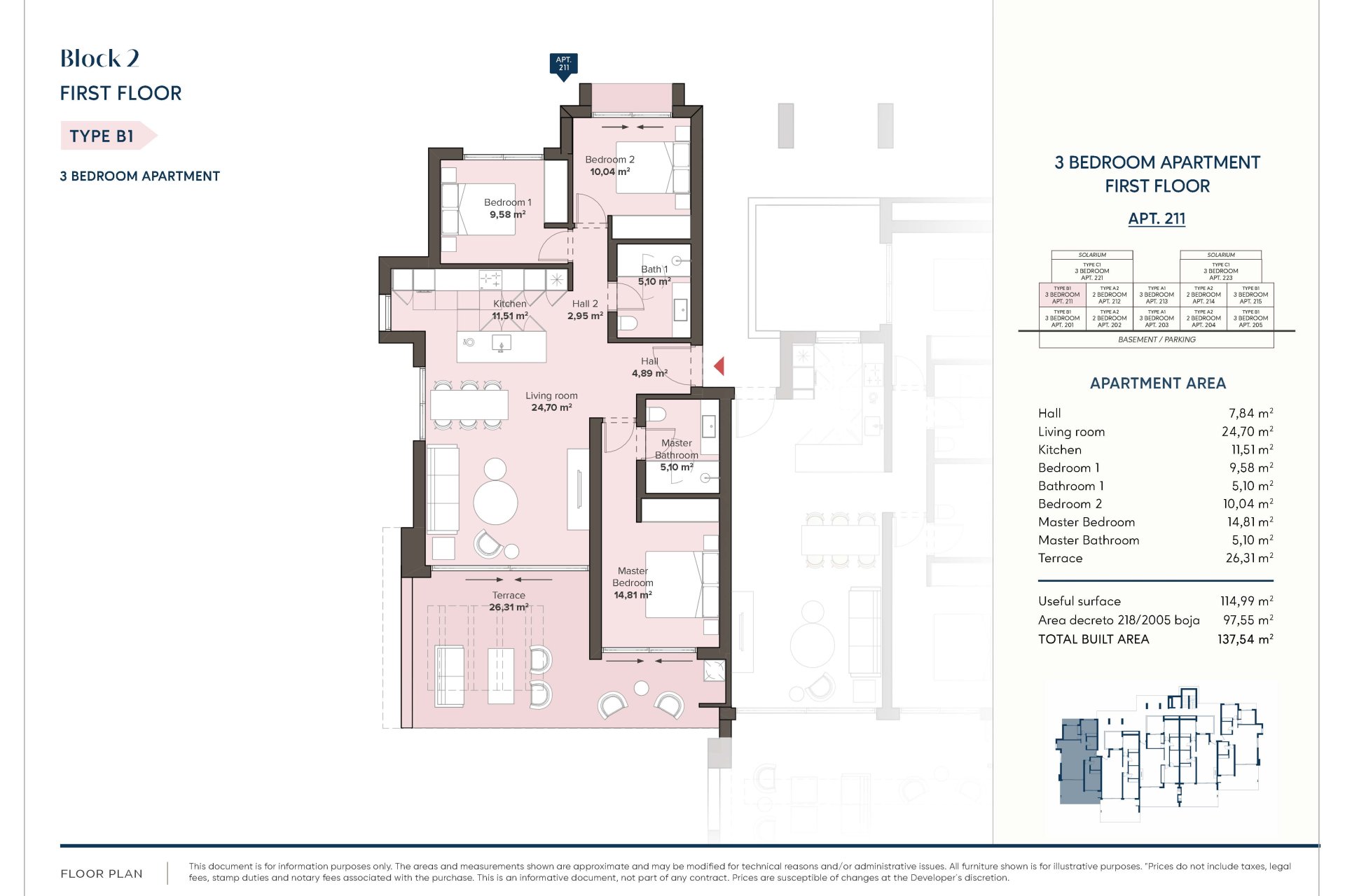
The interior design focuses on providing comfort and modernity. Options include apartments and ground floor homes with configurations of 2 or 3 bedrooms and up to 2 bathrooms. Underfloor heating ensures warmth during the winter, while the porcelain stoneware floors add elegance and ease of maintenance. Equipped with modern appliances and advanced home automation, these spaces are designed to simplify daily life. Built-in wardrobes provide efficient storage.
The common areas of the residential complex stand out for their attractive design and include a communal pool ideal for cooling off in the summer. They also feature a communal garage that offers secure parking for vehicles, adding extra convenience for residents.