€470.000
02-12-2025
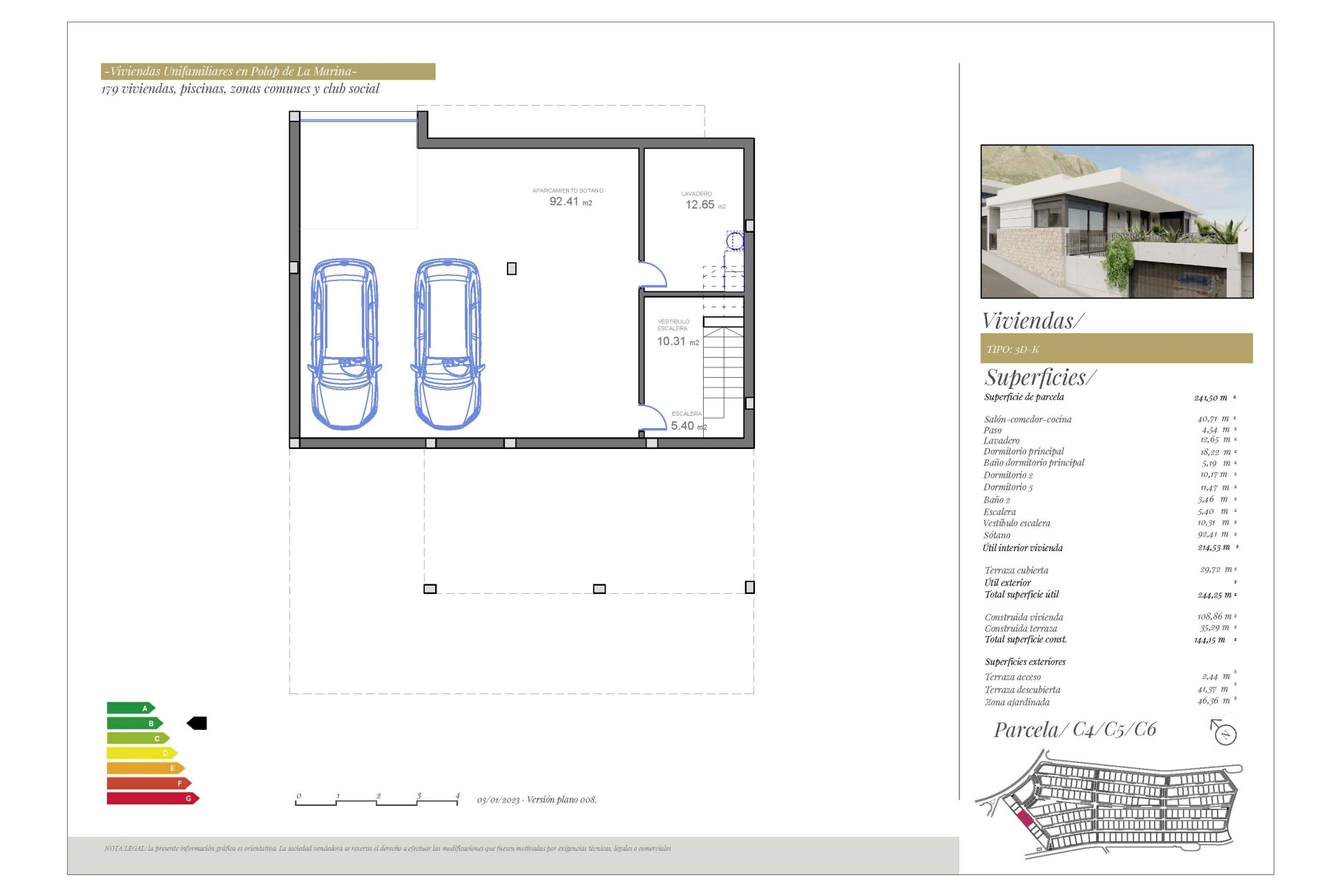
3
2
144m2
332m2
77 m2
Yes
keyhandover
10000 Mts.
43000 Mts.
18300 Mts.
11207 Mts.
Alicante Spain Properties invites you to discover a residential development in Polop that stands out for its serenity and proximity to essential services. This complex houses 53 independent homes with sea views, designed for those seeking comfort without losing connection to the urban environment. Located just 43 kilometers from the airport, it offers excellent connectivity for residents and visitors. The options of 2 or 3 bedrooms, along with 2 or 3 bathrooms, make these homes ideal for families of various sizes.
In Polop, the homes offer outdoor spaces that maximize enjoyment of the Mediterranean climate. Each house has its own private terrace where you can enjoy sea views while relaxing. The private garden is perfect for nature lovers, and each property includes a private pool that ensures refreshing moments in total privacy. The pergolas add a special touch to the outdoor space, creating shaded areas ideal for social gatherings.
The interior of these modern homes in Polop is designed with daily comfort and functionality in mind. Fully furnished and ready to move in from day one, they feature easy-to-maintain ceramic flooring. Equipped with modern appliances and air conditioning, they guarantee a comfortable environment year-round. Electric blinds contribute to both energy efficiency and home comfort. Additionally, each home has a private garage, providing extra security.
This residential complex in Polop not only offers exceptional homes but also attractive common areas designed to enhance the quality of life for its residents. Spacious gardens invite you to enjoy the outdoors while the community pool is ideal for socializing under the Mediterranean sun. With community garage and ample parking for all residents and their guests, as well as a safe playground where the little ones can play happily.
This info given here is subject to errors and do not form part of any contract. The offer can be changed or withdrawn without notice. Prices do not include purchase costs.
First of all, thanks for contacting us.
We have received your request regarding the property reference: NBBC-44000. One of our agents will contact you as soon as possible.
First of all, thanks for contacting us.
We have received a request for a report if you lower the price of the property with the reference: NBBC-44000
In the meantime, please have a look at this selection of similar properties, that might be of interest to you:
Por favor, para utilizar el chat dinos tus datos