€871.162
01-12-2026
3
2
168m2
561m2
32 m2
Sí
8000 Mts.
53600 Mts.
700 Mts.
2400 Mts.
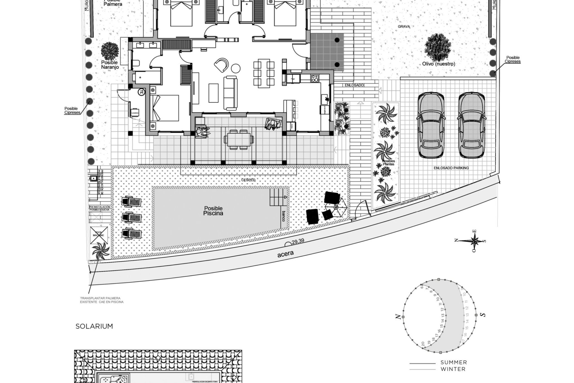
Ubicada en la encantadora Ciudad Quesada, esta propiedad independiente ofrece una experiencia de vida exclusiva. Diseñada para aquellos que buscan privacidad y confort, esta vivienda cuenta con una distribución que maximiza el espacio y la funcionalidad. Con tres dormitorios y dos baños, es ideal para familias que valoran el espacio personal y la comodidad. La ubicación en Ciudad Quesada proporciona un entorno tranquilo y agradable, perfecto para disfrutar de la vida en la Costa Blanca. La propiedad está equipada con aire acondicionado, asegurando un ambiente confortable durante todo el año. Los armarios empotrados ofrecen soluciones de almacenamiento prácticas y elegantes, complementando el diseño moderno de la vivienda.
El exterior de esta propiedad independiente en Ciudad Quesada está diseñado para disfrutar al máximo del clima mediterráneo. La presencia de una piscina privada es un verdadero lujo, permitiendo refrescantes baños en la intimidad de tu hogar. Además, el jardín ofrece un espacio verde donde relajarse o disfrutar de actividades al aire libre. La terraza es un lugar perfecto para cenar al aire libre o simplemente disfrutar de las vistas. La pérgola proporciona sombra y un toque estético adicional, creando un ambiente acogedor para reuniones familiares o con amigos. El solárium es otro punto destacado, ofreciendo un espacio adicional para tomar el sol o disfrutar de las vistas panorámicas.
El interior de la vivienda está cuidadosamente diseñado para ofrecer confort y estilo. Los suelos de gres porcelánico aportan un toque moderno y son fáciles de mantener, ideales para el día a día. La distribución incluye tres dormitorios, todos ellos con armarios empotrados que optimizan el espacio de almacenamiento. Los dos baños están diseñados para ofrecer funcionalidad y estilo, con acabados de calidad. La cocina y el salón están pensados para ser el corazón del hogar, ofreciendo un espacio abierto y luminoso donde disfrutar de momentos en familia. El aire acondicionado asegura que cada estancia sea confortable, independientemente de la estación del año.
Esta información que se proporciona aquí está sujeta a errores y no forma parte de ningún contrato. La oferta se puede cambiar o retirar sin previo aviso. Los precios no incluyen los costes de compra
© 2026 Alicante Spain Properties · Nota legal · Privacidad · Cookies · Mapa Web
Diseño & CRM: Mediaelx
En primer lugar, gracias por contactarnos.
En primer lugar, gracias por contactarnos.
Hemos recibido una solicitud de informe si baja el precio de la propiedad con la referencia: NBBC-84014
Mientras tanto, eche un vistazo a esta selección de propiedades similares que podrían ser de su interés:
Encuentra tu hogar ideal guardando tus propiedades y recibiendo alertas sobre nuevas propiedades disponibles.
Login Nuevo usuarioPor favor, para utilizar el chat dinos tus datos