€309.900
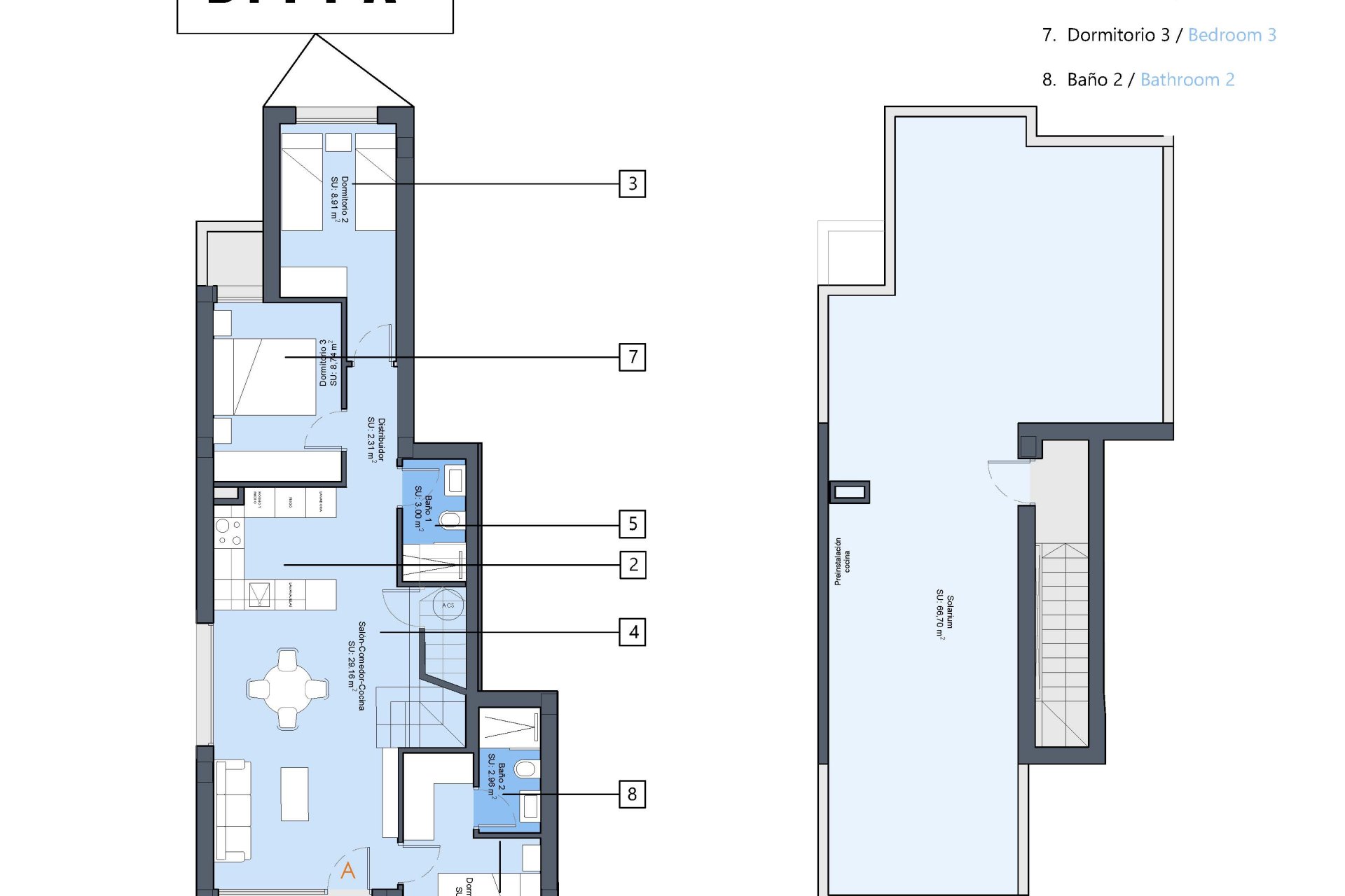
En la pintoresca localidad de Dolores, Alicante Spain Properties presenta un desarrollo residencial compuesto por 16 bungalows. Con opciones que incluyen bungalows con jardín y otros con solárium, estas viviendas están pensadas para ofrecer el máximo confort y funcionalidad a sus residentes. Con una ubicación estratégica a solo 4 km del aeropuerto, la conectividad está garantizada. Este proyecto es ideal para quienes desean vivir en un entorno apacible sin renunciar a las comodidades modernas. Las propiedades cuentan con 3 dormitorios y 2 baños, proporcionando amplio espacio para familias o parejas.
Los exteriores de estos bungalows en Dolores han sido diseñados para disfrutar al máximo del clima mediterráneo. Cada unidad ofrece su propio jardín privado, un espacio perfecto para personalizar como área verde o zona recreativa al aire libre. Las terrazas son ideales para relajarse mientras se disfruta de las vistas panorámicas y el solarium añade un rincón exclusivo donde tomar el sol o simplemente descansar en paz.
El interior de estos modernos bungalows destaca por su diseño detallado y práctico. Los suelos de gres porcelánico no solo aportan elegancia sino que también facilitan el mantenimiento diario. Las persianas eléctricas integradas permiten controlar fácilmente la iluminación natural, brindando modernidad y comodidad adicional. La cocina viene equipada con todos los electrodomésticos necesarios desde el primer día, haciendo la vida más sencilla. Los dormitorios incluyen armarios empotrados que ofrecen soluciones eficientes para mantener todo organizado.
Las áreas comunes del complejo residencial en Dolores están concebidas para fomentar una vida comunitaria activa y placentera. Unos jardines comunitarios bien cuidados proporcionan un entorno natural donde relajarse es un placer cotidiano. La piscina comunitaria es ideal para refrescarse durante los calurosos días estivales, convirtiéndose en punto de encuentro familiar por excelencia. Además, hay aparcamiento comunitario disponible que garantiza seguridad y comodidad a los propietarios.